Page suivante
Page précédente
Saint-Paul (97460)

Bureaux 601.44 m²

4
16 334 € / mois HT - HC*
Réf B-R 3

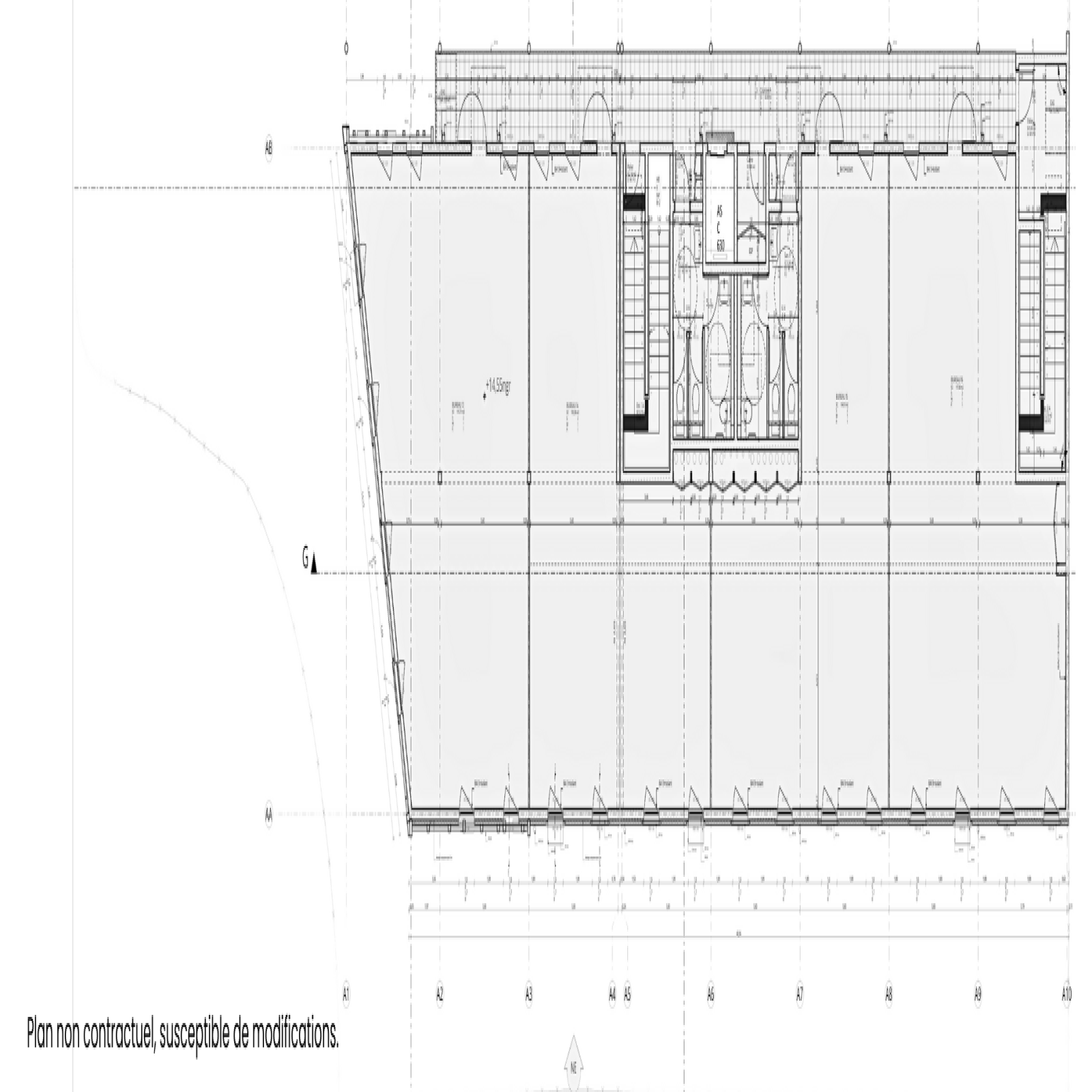
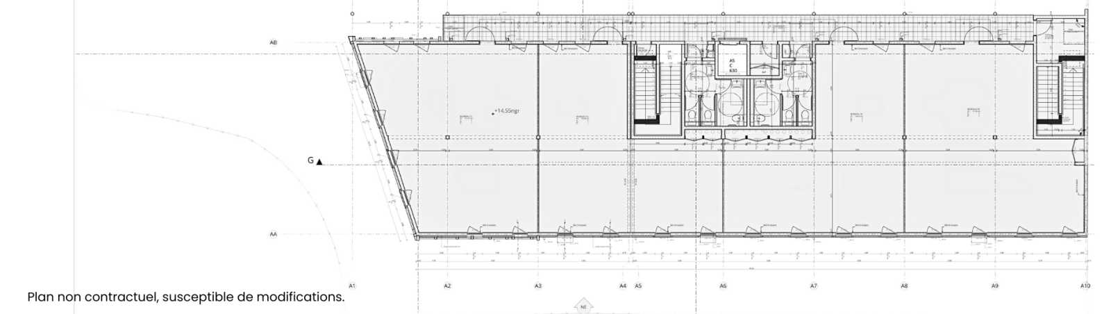
Immeuble tertiaire à construire, GALABÉ situé dans au coeur du quartier d'affaires de Savanna, dispose de bureaux à louer d’une surface de 601,44 m², divisible à partir de 103m².

Les locaux sont livrés pré-aménagés (faux plafond, luminaires encastrés, climatisation, murs périphériques & sols finis), de belles prestations (selon notice descriptive à fournir). Travaux de cloisonnement intérieurs en sus à la charge du Preneur (possibilité de surloyer).

L'ensemble du plateau dispose de 20 places de stationnement privatives en extérieur (1 place pour 33m² de bureaux environ).

Disponibilité prévisionnelle : 2nd semestre 2026.

- Surface : 601,44 m²

- Parking : 17 places privatives en extérieur.

- Loyer annuel : 196 004,00 € HT

- Loyer mensuel: 16 334, 00 € HT

- Loyer et charges payable trimestriellement d’avance.

- Taxe Foncière et TEOM à la charge du preneur.

- Assurance PNO à la charge du preneur.

- Indexation conventionnelle annuelle des loyers.

- Indice ILAT.

- Dépôt de garantie : 3 mois de loyer.

- Honoraires de commercialisation à la charge du Preneur : 15% HT du loyer annuel HT, soit 29 400,60€ HT

NOTA : conditions commerciales non-exhaustives.

Les informations sur les risques auxquels ce bien est exposé sont disponibles sur le site Géorisques : www.georisques.gouv.fr

Bilan énergétique

Diagnostics énergetiques
Consommation énergétique
A B C D E F G
Emission de gaz à effet de serre
A B C D E F G
DPE ANCIENNE VERSION
A propos de ce bien Caractéristiques de ce bien
  • Surface 601,44 m²
  • construit en 2026
  • 4 niveau(x)
  • 3 étage(s)
  • 1 ascenseur
  • quartier QA Savanna

Financier

Informations financières
Loyer HT 16 334 € / mois
Honoraires HT charge locataire 29 400,60 €
Dont état des lieux Non renseigné
Dépot de garantie Non renseigné
Charges locatives HT (provision donnant lieu à régularisation annuelle) 4 € / m²

Autour du bien

Découvrez le quartier
CBo Immobilier Agence

* HC : Hors Charges

* HT : Hors Taxes