Page suivante
Page précédente
La Plaine Saint Paul (97411)

Terrain

312 m²
220 000 €
Réf 759-10

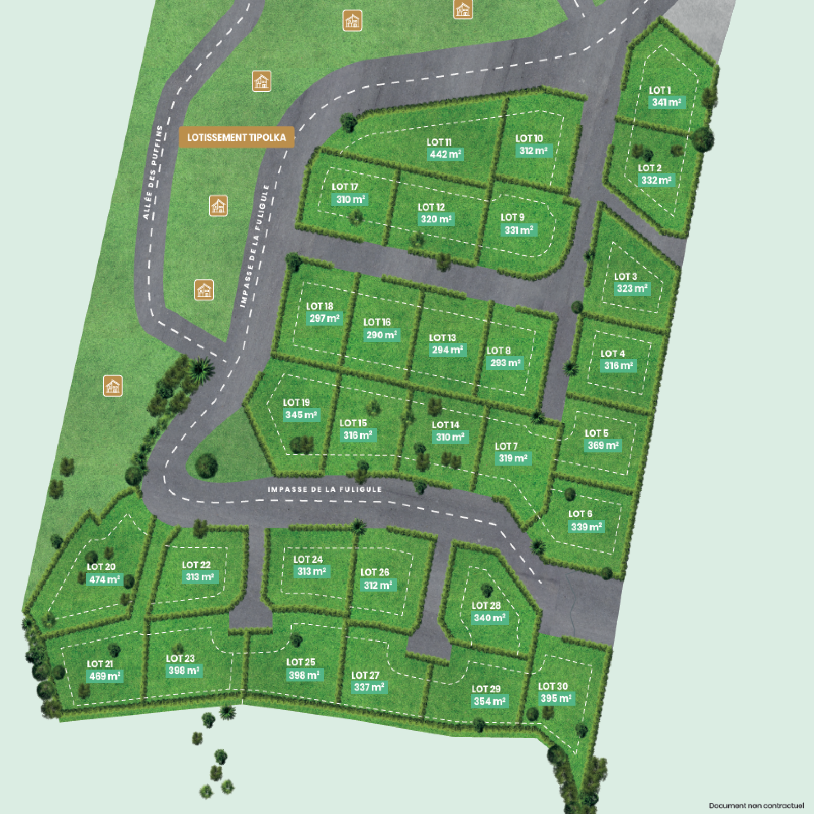
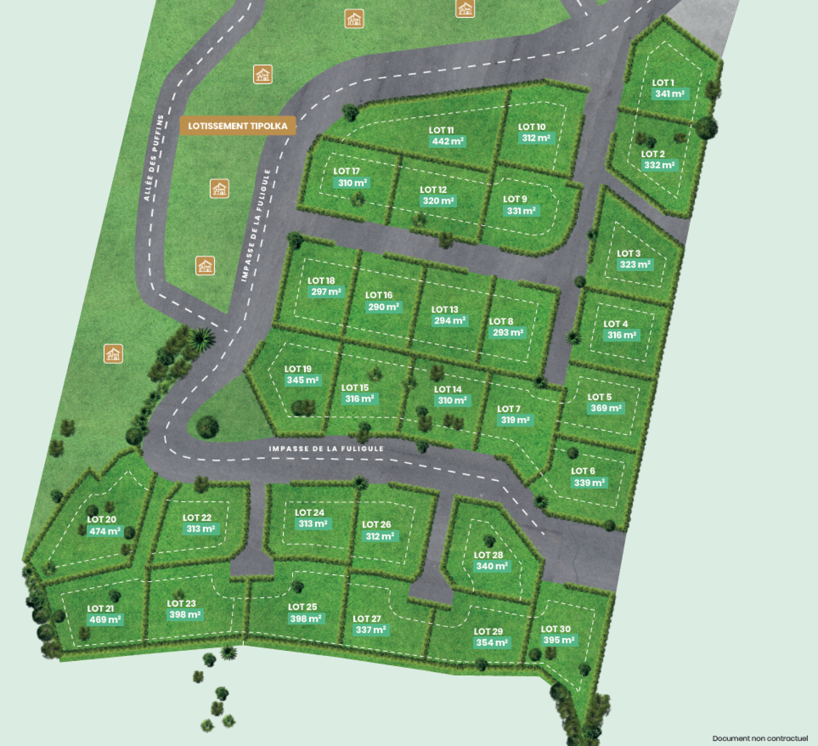
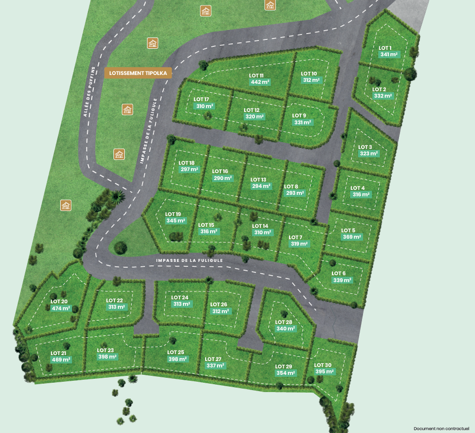
Entre Savanna et la Plaine Saint Paul, CBo Territoria développe au coeur du nouveau Quartier de Marie Caze, le lotissement Zoiseau Blanc.Découvrez ces parcelles viabilisées et prêtes à bâtir, à proximité du lycée Saint-Paul IV, du CHOR et des commerces de proximité, et devenez propriétaire dans un environnement privilégié et résidentiel de l'ouest.Nous vous proposons cette parcelle de 312 m² qui n'attend plus que votre future maison.


Prix de vente : 220 000 € FAI TTC

Prix net vendeur : 208 065 € TTC
Honoraires : 11 935 € TTC à la charge du vendeur

Les informations sur les risques auxquels ce bien est exposé sont disponibles sur le site Géorisques : www.georisques.gouv.fr

Bilan énergétique

Diagnostics énergetiques
Consommation énergétique
A B C D E F G
Emission de gaz à effet de serre
A B C D E F G
DPE ANCIENNE VERSION
A propos de ce bien Caractéristiques de ce bien
  • terrain 312 m²
  • quartier Marie-Caze

Financier

Informations financières
Prix de vente honoraires TTC inclus 220 000 €

Autour du bien

Découvrez le quartier

Simulation

Calcul des mensualités
* Champs obligatoires
CBo Immobilier Agence