Page suivante
Page précédente
Saint-Pierre (97410)

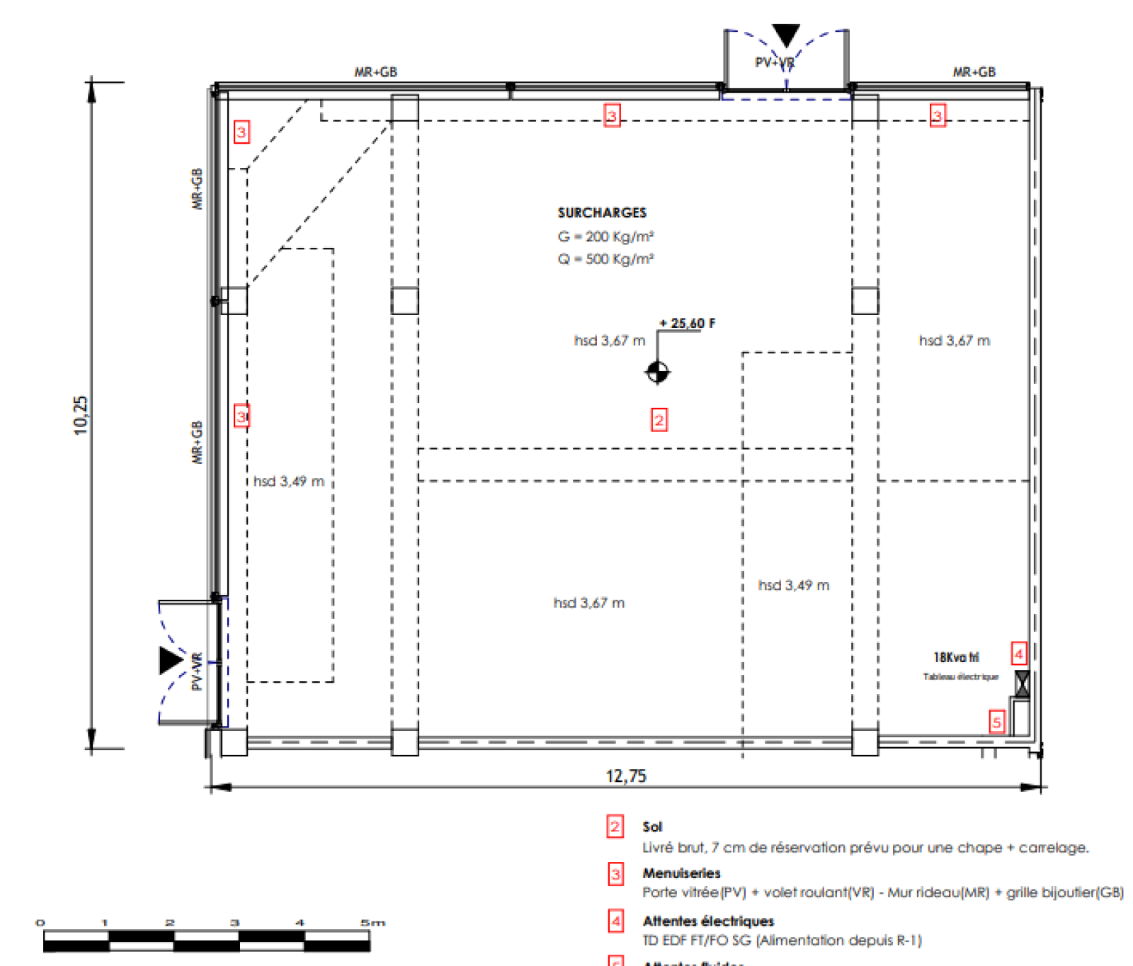
Local commercial 124 m²

2 458 € / mois HT - HC*
Réf JDU-C4

Les Jardins d'Ugo accueillent commerces, services de proximité et bureaux.

Cette diversité s'organise autour de deux patios spacieux et végétalisés et deux jardins tropicaux ouverts sur la ville.

L'ensemble, situé à l'angle de la rue de Cayenne et Sainte Rose à Saint-Pierre, se trouve à proximité du front de mer.

Les locaux sont livrés brut d'aménagement, fluides en attente.

Accessibilité PMR.

- Surface : 124 m²

- Loyer mensuel HT/HD : 2 458,00 €

- Honoraires : 4 425,00 € HT à la charge du vendeur.

NOTA : conditions commerciales non-exhaustives.


Les informations sur les risques auxquels ce bien est exposé sont disponibles sur le site Géorisques : www.georisques.gouv.fr

Bilan énergétique

Diagnostics énergetiques
Consommation énergétique
A B C D E F G
Emission de gaz à effet de serre
A B C D E F G
DPE ANCIENNE VERSION
A propos de ce bien Caractéristiques de ce bien
  • Surface 124 m²

Financier

Informations financières
Loyer HT 2 458 € / mois
Honoraires HT charge locataire 4 424 €
Dont état des lieux Non renseigné
Dépot de garantie 7 €
Charges locatives HT (provision donnant lieu à régularisation annuelle) 3 € / m²

Autour du bien

Découvrez le quartier
CBo Immobilier Agence

* HC : Hors Charges

* HT : Hors Taxes